Please rotate your device
Skip to main content
  1. Projects
  2. Signature bridges rail road bridges
  3. CHILINA BRIDGE. Peru

CHILINA BRIDGE. Peru

Home

Menú Lateral

Información del proyecto

The Chilina Bridge has a great importance for the city of Arequipa, ordering the incoming and outgoing traffic, and also facilitating and accelerating the transit of the perimeter road of the city sweeping on the valley of the Chili River.

This structure is located between the “Chilina” Avenue, and Magnopata round road, and is more than 500 meters long, flying 50 meters high over the ground.

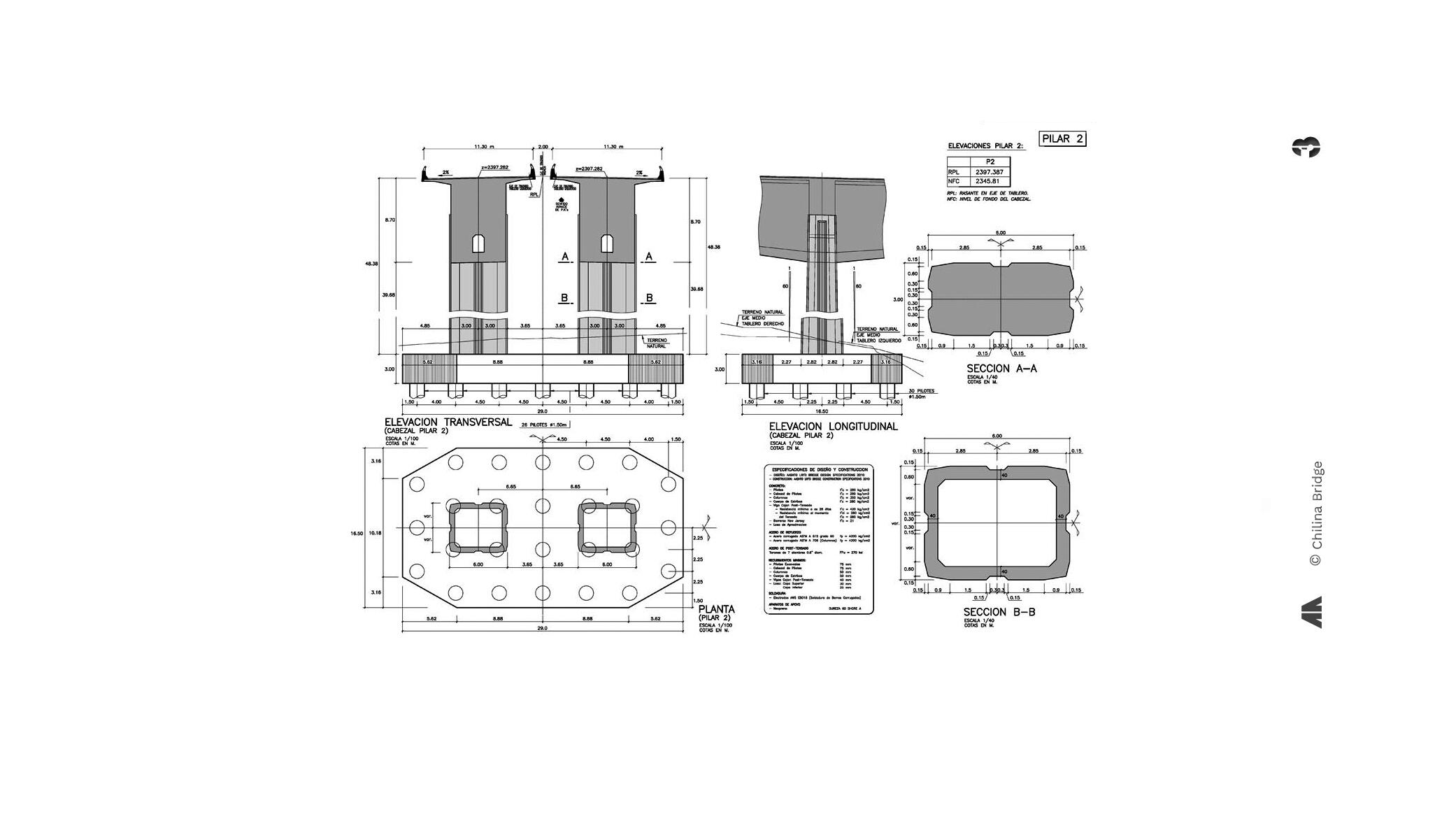
The bridge, composed by two parallel structures with a straight deck of 11.3 meters width, has two lanes for circulation on each element, being the decks fixed on the piles, resulting ductile behaviour of the viaduct. 

The cross sections of the bridge are concrete boxes not only in the deck, but also in the piles, being only the deck prestressed.

The total length of the bridge is 562 meters, being the span distribution 100+157+142+102+61m, and the construction procedure the incremental launch.

In conclusion this is a huge engineering importance construction is dimensions, located on a seismic area, which is also integrated in the landscape respecting the Chili Valley and Arequipa; and with views to the Misti Volcano, and the snowed Pichu Pichu and Cachani mountains.

 

Owner: Gobierno Regional de Arequipa

Project: Arenas & Asociados

Total length: 562 m. Deck width: 24.6 m. Main span: 157 m

Contractor: UTE Isolux Corsán - Metric - Incot

Arenas & Asociados’ Role: Complete project developer

Info

Titulo Proyecto

CHILINA BRIDGE. Peru

Cuerpo Proyecto

The Chilina Bridge has a great importance for the city of Arequipa, ordering the incoming and outgoing traffic, and also facilitating and accelerating the transit of the perimeter road of the city sweeping on the valley of the Chili River.

This structure is located between the “Chilina” Avenue, and Magnopata round road, and is more than 500 meters long, flying 50 meters high over the ground.

The bridge, composed by two parallel structures with a straight deck of 11.3 meters width, has two lanes for circulation on each element, being the decks fixed on the piles, resulting ductile behaviour of the viaduct. 

The cross sections of the bridge are concrete boxes not only in the deck, but also in the piles, being only the deck prestressed.

The total length of the bridge is 562 meters, being the span distribution 100+157+142+102+61m, and the construction procedure the incremental launch.

In conclusion this is a huge engineering importance construction is dimensions, located on a seismic area, which is also integrated in the landscape respecting the Chili Valley and Arequipa; and with views to the Misti Volcano, and the snowed Pichu Pichu and Cachani mountains.

 

Owner: Gobierno Regional de Arequipa

Project: Arenas & Asociados

Total length: 562 m. Deck width: 24.6 m. Main span: 157 m

Contractor: UTE Isolux Corsán - Metric - Incot

Arenas & Asociados’ Role: Complete project developer

Menú Legal - Gris

Ethics | Legal | Jobs | Contact