Please rotate your device
Skip to main content
  1. Projects
  2. Proyectos
  3. SENEGAMBIA BRIDGE. Gambia

SENEGAMBIA BRIDGE. Gambia

Home

Menú Lateral

Información del proyecto

The new Trans Gambia bridge, also called SeneGambia bridge, will first open to traffic on January 19th 2019. This will be the first bridge over the river Gambia in its 1120 km. Which is a huge breakthrough in this African region in order to communicate the west African countries. Until today the crossing was done with a ferry which could only hold a few cars and trucks, which meant vehicles and trucks would line up for days until they could cross. Now the crossing will only take minutes and in a completely safe and modern bridge.

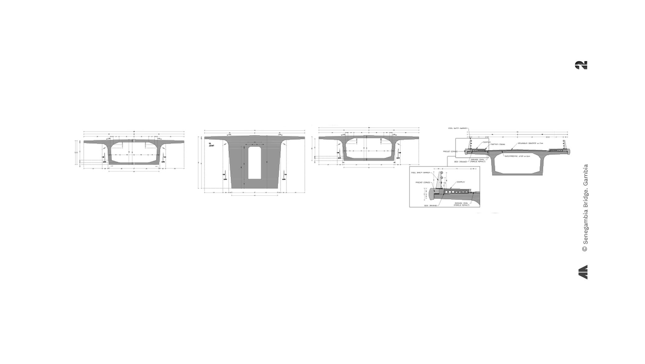
The new bridge is 942 m long, with mains spans 80+100+80 m over navigation channel, five typical spans of 60 m to each side, and extreme spans of 41 m. The bridge includes 14 piers, 10 of which are permanently in the river, with up to 20 m water depth. The deck is 12 m wide and holds 2 vehicles lanes and sidewalks.

The bridge has been built using cantilever method cast in situ with form travellers. The piled foundations include steel driven piles filled with concrete.

The bridge has been built with intensive use of marine equipment as barges and ferry boats in order to transport materials, fresh concrete and cranes.

 

Owner: Republic of Gambia

Project: Arenas & Asociados

Total length: 942 m. Deck width: 12 m. Main span: 100 m

Contractor: Arezki

Arenas & Asociados’ Role: Modified Project developer

Info

Titulo Proyecto

SENEGAMBIA BRIDGE. Gambia

Cuerpo Proyecto

The new Trans Gambia bridge, also called SeneGambia bridge, will first open to traffic on January 19th 2019. This will be the first bridge over the river Gambia in its 1120 km. Which is a huge breakthrough in this African region in order to communicate the west African countries. Until today the crossing was done with a ferry which could only hold a few cars and trucks, which meant vehicles and trucks would line up for days until they could cross. Now the crossing will only take minutes and in a completely safe and modern bridge.

The new bridge is 942 m long, with mains spans 80+100+80 m over navigation channel, five typical spans of 60 m to each side, and extreme spans of 41 m. The bridge includes 14 piers, 10 of which are permanently in the river, with up to 20 m water depth. The deck is 12 m wide and holds 2 vehicles lanes and sidewalks.

The bridge has been built using cantilever method cast in situ with form travellers. The piled foundations include steel driven piles filled with concrete.

The bridge has been built with intensive use of marine equipment as barges and ferry boats in order to transport materials, fresh concrete and cranes.

 

Owner: Republic of Gambia

Project: Arenas & Asociados

Total length: 942 m. Deck width: 12 m. Main span: 100 m

Contractor: Arezki

Arenas & Asociados’ Role: Modified Project developer

Menú Legal - Gris

Ethics | Legal | Jobs | Contact